Zašto odabrati spalionicu otpada za odlaganje otpada?
- U poređenju sa deponijom, spalionica otpada uvelike smanjuje količinu otpada i štedi vrijedne zemljišne resurse, posebno u urbanim sredinama gdje je zemljište skučeno.
- Kako ekološki propisi postaju sve stroži, tradicionalne metode odlaganja otpada su ograničene zbog potencijalnih rizika od zagađenja, a spalionica otpada se široko koristi kao ekološki prihvatljivija metoda tretmana.
- Sa ubrzanjem urbanizacije, količina proizvedenog smeća nastavlja da raste, a spalionice smeća pružaju efikasno sredstvo za tretman koji pomaže gradovima da se nose s problemom opsade smeća.
- Toplota nastala tokom spalionice otpada može se koristiti za proizvodnju električne ili toplotne energije, čime se ostvaruje energetska iskorišćenost otpada i smanjuje zavisnost od fosilnih goriva.
- Pepeo i leteći pepeo iz spalionica otpada mogu se sveobuhvatno iskoristiti, kao što je proizvodnja građevinskog materijala, za ostvarivanje korištenja resursa otpada.
- Nakon godina razvoja, tehnologija spaljivanja otpada je postala relativno zrela i može efikasno kontrolisati zagađivače proizvedene tokom procesa spaljivanja i osigurati da emisije izduvnih gasova ispunjavaju standarde zaštite životne sredine.
- Smanjite smeće i pretvorite otpad u blago.

Parametri proizvoda
|
Skala (t/d) |
Broj peći |
Ukupna visina opreme (m) |
Podna površina (m2) |
Standard emisije |
|
50 |
1 |
17 |
60 |
《Standardi kontrole zagađenja za ekspresno spaljivanje kućnog otpada (GB18485-2014) |
|
100 |
1 |
17 |
75 |
|
|
150 |
2 |
17 |
90 |
|
|
200 |
2 |
17 |
105 |
|
|
250 |
3 |
17 |
12 |
Prednosti upravljanja otpadom
Spalionica komunalnog otpada može proizvoditi paru, toplu vodu i električnu energiju, održivu energiju iz spaljivanja otpada malog obima.
gdje je aplikacija?
Grad, gradovi i mjesta, vlada, elektrana.




imate li pitanja?

kako radi spalionica otpada?
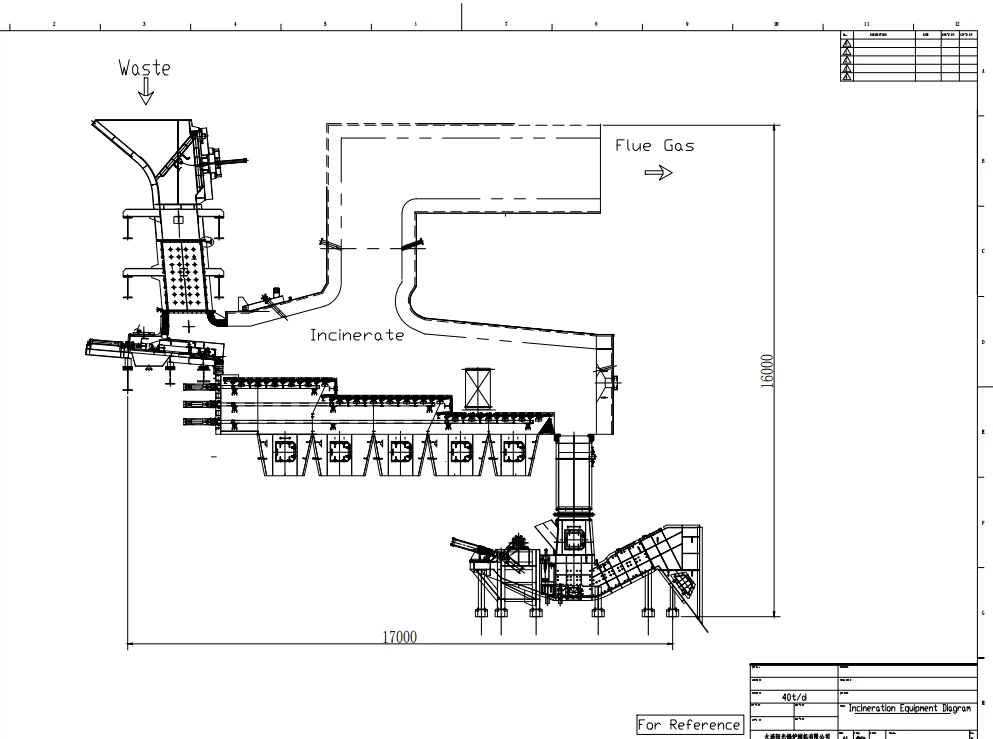
Spalionica smeća je bezopasna oprema za tretman koja integriše automatsko punjenje, prosijavanje, sušenje, spaljivanje, čišćenje prašine, uklanjanje prašine i automatsku kontrolu. Široko se koristi za neškodljiv tretman medicinskog otpada, kućnog otpada i životinjskih leševa. . Spaljivanjem na visokim temperaturama, spalionice otpada ne samo da mogu efikasno smanjiti količinu otpada, već i u određenoj mjeri smanjiti zagađenje okoliša otpadom i osigurati dodatnu opskrbu energijom putem povrata toplinske energije.
šta je spalionica otpada?
Spalionica otpada je postrojenje ili uređaj dizajniran za odlaganje otpadnih materijala spaljivanjem na visokim temperaturama. Spalionice se koriste u različite svrhe, uključujući odlaganje čvrstog komunalnog otpada (MSW), tretman opasnog otpada, odlaganje medicinskog otpada i upravljanje industrijskim otpadom.
Primarna funkcija spalionice je smanjenje količine otpada pretvarajući ga u pepeo i dim, koji se onda mogu lakše odložiti ili tretirati. Toplota proizvedena tokom procesa spaljivanja se također može povratiti i koristiti za proizvodnju energije, kao što je proizvodnja električne energije ili grijanje.
Spaljivanje se smatra oblikom termičke obrade i jedna je od nekoliko strategija upravljanja otpadom koje se mogu koristiti za rukovanje različitim vrstama otpada. Međutim, spaljivanje je kontroverzno zbog potencijalnih uticaja na životnu sredinu, kao što su zagađenje vazduha i oslobađanje toksičnih supstanci ako se ne kontroliše pravilno. Kao rezultat toga, moderne spalionice su opremljene naprednim tehnologijama kontrole emisija kako bi se minimizirali ovi rizici.
Dizajn i rad spalionica otpada variraju u zavisnosti od vrste i prirode otpada koji se obrađuje. Na primjer, spalionice komunalnog otpada obično uključuju velike objekte koji prerađuju neopasni čvrsti otpad iz domaćinstava, preduzeća i drugih izvora. Nasuprot tome, spalionice opasnog otpada su posebno dizajnirane za rukovanje toksičnim i hemijski opasnim materijalima i moraju ispunjavati strože ekološke i sigurnosne propise.
šta je spalionica za odlaganje otpada?
Površine za rezanje na vertikalnom krajnjem glodalu (su za glodanje) su sa strane, dizajnirane za horizontalno sečenje, burgija (su za bušenje) rezna površina je na vrhu, dizajnirana za rezanje okomito prema dolje.. primijetit ćete krajna glodalica obično ima ravan na kraju svrdla.
Gdje se koristi spaljivanje?
Spaljivanje čvrstog otpada do 2021. Spaljivanje se također koristi za tretiranje medicinskog otpada, kao što je bolnički otpad koji sadrži krv ili druge potencijalno infektivne materijale. Spaljivanje je siguran način uništavanja opasnih materijala.
Budući da su globalno zagrijavanje, slaganje smeća i način na koji se nositi sa smećem pitanja od sve veće zabrinutosti, kućne peći za spaljivanje otpada pružaju rješenje za tretman urbanog otpada koje poboljšava efikasnost, a istovremeno smanjuje zagađenje, štedi zemljišne resurse i ostvaruje recikliranje energije. Predstavljaju suštinska rješenja u tretmanu gradskog otpada koja pomažu stanovnicima gradova da uštede i zemljišne resurse i novac putem oporavka energije. Essence
Razlozi za instaliranje peći za spaljivanje kućnog otpada u gradu mogu uključivati:
Potreba i efikasnost tretmana smeća, ušteda zemljišnih resursa, smanjenje zagađenja životne sredine i oporavak energije.





